ПК ЛИРА-САПФИР 2025 релиз 2
Новые возможности
Русская Промышленная Компания информирует о выходе 2 релиза программного комплекса для расчета и проектирования строительных конструкций ПК ЛИРА-САПФИР 2025. Рекомендуется установить всем пользователям версии 2025.
Создание и корректировка расчетной модели
Новые типы нагрузок:
- единый диалог для задания, корректировки или просмотра сосредоточенных сил и моментов по направлению глобальных или местных осей, а также сосредоточенного бимомента в узлах. Комбинированную нагрузку можно задавать двумя способами: путем приложения сосредоточенных сил и моментов на узел или сил, приложенных с эксцентриситетом относительно узла. Независимо от выбранного способа задания, на схеме комбинированная нагрузка всегда представляется в виде сил и моментов;
- единый диалог для задания, корректировки или просмотра заданных смещений и поворотов по направлению местных осей, а также заданной депланации в узлах;
- трапециевидная нагрузка-штамп для пластин и объемных КЭ;
- трапециевидная нагрузка по линии (стержни).
В диалоговое окно Нагрузка-штамп (нагрузка по линии и по площади для пластин и объемных КЭ) добавлен параметр R поиска, который настраивает область поиска конечных элементов для применения нагрузки штамп. Используется при корректировке контуров нагрузок при помощи таблиц ввода.

Задание комбинированной нагрузки на узел схемы

Задание трапециевидной нагрузка-штамп для пластин
Добавлена возможность задания наборов настроенных параметров шкал армирования.

Сохранение шкал армирования в список настроек под указанным именем
Добавлена возможность замены одного из трех параметров материала конструирования для железобетонных, стальных и алюминиевых, армокаменных конструкций.

Замена параметра конструирования
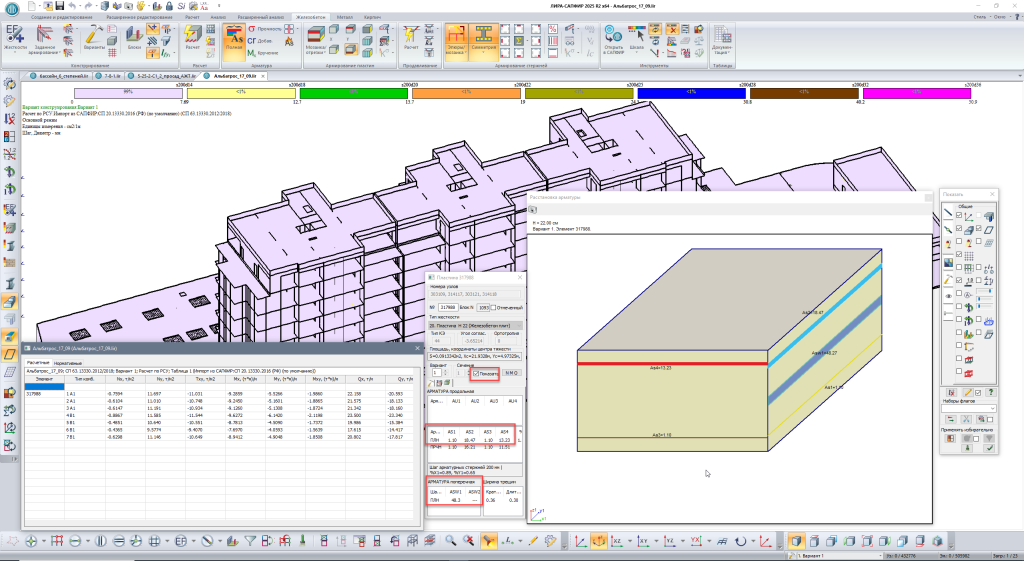
Реализована функция графической визуализации и документирования площади подобранной продольной арматуры у граней сечения, а также площади поперечной арматуры для указанной пластины в текущем варианте конструирования.

Расстановка арматуры в указанной пластине для текущего варианта конструирования
Добавлена возможность изменения масштаба нагрузок, положения окружностей с маркировкой координационных осей, эпюр усилий и армирования для стержней, мозаик стержней и узлов, с помощью вращения колесика мыши при нажатой клавише Shift.
Для возвращения к коэффициенту масштабирования, принятому по умолчанию, нужно выполнить двойной щелчок колесиком мыши при нажатой клавиш Shift.

Изменения масштаба информации, изображаемой непосредственно на схеме
Добавлено новое поперечное сечение типа "Круглая труба" для задания алюминиевых сечений стержней с использованием базы алюминиевого проката.
Расчетные возможности
Исправлена ошибка при расчете инженерная нелинейность 1.
При расчете на сейсмическое воздействие, заданное акселерограммой, с использованием метода модальной суперпозиции (модуль 27) был изменен алгоритм построения графика спектр-ответ (спектр-отклик). Построение спектра осуществляется через поэтажную акселерограмму, амплитуды которой определяются через сумму псевдоускорений (произведение перемещения на квадрат круговой частоты) по формам колебаний:
aj(t) = Σφjk * qk(t) * ωk²,
где aj(t) – ускорение j-й степени свободы в момент времени t,
φjk – ордината j-й степени свободы по k-й форме,
qk(t) – обобщенная координата по k-й форме колебаний в момент времени t,
ωk – круговая частота по k-й форме колебаний.

Поэтажный график спектр-ответ (спектр-отклик)
Для расчета на сейсмическое воздействие в линейно-спектрально постановке с учетом наличия угловых ускорений (модуль 38) появилась возможность задания произвольного графика спектр-ответ. Интегральная расчетная модель сейсмического воздействия учитывает движение массива грунта под сооружением как единого целого. Это движение определяется двумя векторами: поступательного движения и углового ускорения вращения.

Модуль 38 - модель сейсмического воздействия с учетом кручения. Произвольный график спектр-ответ
Оптимизирован алгоритм автоматического выбора шага для геометрически нелинейных задач.
При расчете на сейсмическое воздействие, заданное произвольным графиком спектр-ответ (модуль 41), появилась возможность выбора в каких единицах задавать параметры воздействия по оси абсцисс.

Модуль 41 - расчет на произвольный график спектр-ответ
При анализе результатов расчета появилась возможность получения данных для расчета устойчивости положения: в меню "Суммирование нагрузок" добавлен функционал определения суммарных поперечной силы и момента от динамических загружений (сейсмика и пульсация). Суммирование выполняется тем же методом (SSRS, CQC, 10%), который выбран в параметрах этого динамического воздействия. По результатам суммирования можно получить подробный отчет (для целей верификации и/или оформления отчета).
Инструменты анализа свойств и результатов расчета
Появились мозаики расчетных длин железобетонных стержней и пластин (стен) относительно локальных осей Z1 и Y1. ВНИМАНИЕ! Высота стены определяется направлением местной оси Y1, поэтому согласованные местные оси Y1 конечных элементов оболочек, которыми моделируется стена или диафрагма с учетом гибкости, должны быть направлены вертикально.

Мозаика расчетных длин ж.б. стержней и пластин
Для анализа усилий в специальных КЭ (51, 55, 56, 251, 252, 255, 256, 261, 262, 265, 266, 263, 264) при расчете на динамические нагрузки и воздействия методом прямого интегрирования уравнений движения в геометрических координатах появилась возможность построения графиков деформации-усилия. Полученные диаграммы можно сохранять в формате CSV.

Петля Гистерезиса для упруго-пластического демпфера, моделируемого при помощи КЭ 255
Проектирование железобетонных конструкций
Для стандартного алгоритма расчета нормального сечения по прочности уточнены параметры используемой двухлинейной диаграммы работы бетона.
Для модифицированного алгоритма расчета нормального сечения по прочности скорректирован подход по ограничению развития пластических деформаций арматуры.
Уточнен выбор вида диаграммы работы, используемой при расчете прочности нормального сечения, при наличии опции «Использовать рекомендации пункта 6.1.23». До исправления при включенной опции в расчете использовалась только двухлинейная диаграмма работы бетона.
Скорректирован расчет КЗ для нормального сечения по прочности при наличии сейсмической комбинации усилий группы РСУ С1.
Рекомендованные параметры подбора/проверки армирования для стержней в текущем релизе:
- в параметрах "Тип" взвести опцию "Использовать модифицированный алгоритм" (для новых задач она будет взведена по умолчанию) и регулировать количество подбираемых промежуточных площадок между угловыми стержнями, которое планируется реализовать при проектировании сечения (по умолчанию используется 2 площадки по короткой и длинной грани прямоугольника, но для пилона с большим количеством промежуточных стержней по длинной грани будет экономнее установить реальное количество);
- в параметрах "Бетон" использовать 2-х линейную диаграмму бетона (как самую простую по рекомендациям СП 63.13330.2018) и взвести опцию "Использовать рекомендации пункта 6.1.23" (СП 63.13330.2018), в соответствии с которой для расчета прочности (1ПС) будут использоваться деформационные характеристики, отвечающими непродолжительному действию нагрузки;
- в параметрах "Арматура" взвести опцию "Примечание к т. 6.14" (п. 6.2.8 СП 63.13330.2018).

Рекомендованные параметры армирования в текущем релизе
- Для расчета армирования плоских элементов по теории Карпенко скорректирован алгоритм расчета при НДС оболочки, близком к НДС балки-стенки.
- Исправлена ошибка отсутствия реакции на заданный коэффициент надежности по ответственности yn при расчете продавливания на основе РСУ.
- Для сечений трубобетона восстановлен расчет подбора/проверки армирования.
- Исправлена некорректная передача данных о контуре периметра продавливания с учетом отпора грунта в диалог информация об элементе в результатах расчета (после расчета вместо периметра контура продавливания записывался контур сбора реакций Rz).
Проектирование металлических конструкций
Добавлена мозаика назначенных классов поперечных сечений при расчете по СП 16.13330.2017.

Мозаика назначенных сечений по классу
Добавлен фильтр сортаментов по сформированным группам. После его применения в списках назначения параметров металлических сечений или в перечне сортаментов системы Редактируемый сортамент будут отображаться только сортаменты из выбранных групп.
Добавлена проверка и подбор алюминиевых конструкций с поперечным сечением из круглых труб. Также добавлены соответствующие сортаменты: ГОСТ 18475-82, ГОСТ 18482-19, ГОСТ 18482-2018, ГОСТ 23697-79.
Уточнен расчет касательных напряжений для парных уголков по СП 16.13330.2017.
Добавлены двутавры стальные горячекатаные по ГОСТ 35087-2024, всего 7 сортаментов.
Грунт
В диалоге "Результаты в точке" добавлен опциональный вывод результатов расчета специфических грунтов, что позволяет посмотреть детали расчета. Например, для расчета усадки набухающего грунта показывается заштрихованный участок эпюры полных напряжений Sz, в котором реализовался расчет усадки до заданной нижней границе зоны усадки Hsh. Для засоленного грунта показывается начальное давление суффозионного сжатия Psf (давление, при котором относительное суффозионное сжатие еsf равно 0.01 - его можно задать в таблице в явном виде самостоятельно или оно будет рассчитано по пропорции от заданных данных).
Примечание: В суммарное напряжение Sz(w) для расчетов осадок просадочного и засоленного грунтов входит их собственный вес с учетом взвешивающего действия воды, даже если в исходном расчете без учета спец грунтов они указаны без признака W (обводненный), потому что просадочность и суффозионная осадка реализуются только в случае замачивания. Поэтому на эпюре контроля расчета специфического грунта по подошве просадочного и засоленного грунтов мы увидим скачок напряжений от давления воды (как на кровле водоупора), которого нет в расчете без просадки и суффозионной осадки.

Эпюра напряжений для контроля расчета специфических грунтов
В параметрах группы свайного поля появились новые настройки расчета:
- Опции управления вычислением осадок продавливания острием сваи Sp и сжатия ствола сваи Sc (осадка сжатия ствола сваи Sc считается только в системе Грунт для оценки суммарных осадок, при этом для расчета жесткости сваи (Rz в КЭ57) она не используется, поскольку в расчетной схеме в модели свай из цепочек стержней сжатие ствола сваи будет получено в самих стержнях).
- Добавлена опция управления учетом заданной глубины hd не только для расчета Fd c учетом сейсмически (таким образом теперь можно через hd (от головы сваи) задать глубину просадочного грунта или подобного, чтобы не учитывать вклад несущей способности по боковой поверхности Fi на этом участке сваи).
- Добавлена настройка hd, которая позволяет напрямую указать, использовать ли hd в расчете осадки для одиночной сваи и по модели куста свай (ранее эта настройка включалась опцией "использовать hd для вычисления Rx, Ry", и выключалась опцией "hd=0 для Rxy", о чем было написано во всплывающих подсказках, теперь она вынесена в отдельное управление).
- Добавлены новые опции формирования Условных фундаментов для свай: при расчете Rусл по формуле h*tg(φII/4) добавлен учет глубины hd, на которой не учитывается несущая способность fi по боковой поверхности сваи, таким образом получаем радиус условного фундамента при (h-hd)*.
* Если параметр "h-hd" по указанной формуле приводит к значению Rусл < 0.5D (половина диаметра сваи) или Rусл < 0.5Db (половина диаметра уширения, если оно задано), то в расчете принимается Rусл = 0.5D или Rусл = 0.5Db. Таким образом, задав hd равный длине сваи, можно выключить учет Fi по всей ее длине и сформировать условный фундамент по габариту поперечного сечения сваи или уширения, что подходит, например, для расчета осадки свай-стоек, опирающихся нижним концом на скальный грунт. Модуль деформации скального грунта можно определить в зависимости от предела прочности Rc по таблице 4 или от степени деформируемости по таблице А.3 в СП 23.13330.2018 «СНиП 2.02.02-85* Основания гидротехнических сооружений».
В системе Грунт в параметрах нагрузок добавлены элементы управления расчетом осадок Sp и Sc, а также задается уширение пяты сваи, которое теперь учитывается при расчете осадки продавливания Sp. Эти данные из параметров группы свай расчетной схемы так же переносятся в нагрузки, формируемые от свай по модели условного фундамента, при связке с моделью Грунта.

Новые параметры группы свайного поля
В расчетах свай по модели условного фундамента добавлена новая проверка: если по заданным параметрам расчета свай получается Аср≤1.5D (или Аср≤1.5Db, если задано уширение пяты сваи), то в соответствии с формулой 7.47 СП 24.13330.2011/2021 составляющая ΔSpl получается отрицательной, а значит и осадка продавливания Sp будет отрицательной - для такого случая осадка продавливания Sp принимается равной нулю, о чем выдается предупреждение с перечнем нагрузок, где такое произошло (ранее в подобных случаях выдавалось иное предупреждение и осадка Sp приравнивалась к 10 м).
Для учета жесткости "размазанного свайного основания" по площади нагрузки при расчете коэффициентов постели С1 изменено определение нагрузки "p" (среднее давление по подошве условного фундамента), которое используется в формуле 7.47 СП 24.13330.2011/2021 при определении ΔSpl (теперь p равно сумме нагрузок: импортированная или заданная нагрузка + добавленные равномерно распределенный вес свай по площади нагрузки и вес ростверка (задается толщиной Тр при объемном весе 2.5 т/м3)). До этого изменения вычислялась как: p = P/Acp2, где P - нагрузка на голову сваи (суммарные нагрузки + вес ростверка и всех свай, деленный на количество свай), Acp - заданный средний шаг свай. Что оказывалось критичным в случае, когда заданные пользователем количество сваи и средний шаг не бились друг с другом (т.е. площадь нагрузки, деленная на Acp2, не давала заданное количество свай). Теперь результат расчета осадки Sp не так критично зависит от заданных исходных данных.
В настройках шкалы появилась опция вывода процентов в диапазонах шкалы - какая доля точек исходных данных и результатов вычислений попала в данный диапазон.
В легенде (текстовое сопровождение) к результатам расчета (осадка и коэффициенты постели) появился вывод их среднего значения из всех контуров нагрузок с результатами и добавлен перечень осадок, которые выводятся на мозаику.
Конструктор сечений универсальный
Добавлена возможность назначения материалам линейных теплотехнических характеристик с их последующим экспортом в 15-й признак схемы.
В таблицу характеристик добавлен расчет секториального момента сопротивления сечения.
Интероперабельность - компоненты технологии ВIM
Исправлена ошибка передачи ветровых нагрузок из САПФИР и передача аналитической модели в Ревит. Ревит обязательно первый раз запустить через правую кнопку мыши от имени администратора.
- API и таблицы ввода
Добавлены новые таблицы ввода для задания/корректировки данных: коэффициенты диссипации, коэффициенты Рэлея, повышающий коэффициент Fvk, данные пользовательской мозаики.
- IFC
Добавлено создание одного блока осей на уровне проекта с привязкой к выбранным этажам здания вместо блока осей на каждом этаже здания, как в предыдущих версиях программы. Реализован импорт модели IFC в настроенный шаблон проекта.
При импорте/экспорте нескольких зданий формата IFC добавлена возможность импортировать/экспортировать их в отдельные здания.

Импорт/Экспорт IFC в отдельные здания
- DWG
Реализован импорт поэтажных планов dwg в настроенный шаблон проекта.
Добавлена возможность автоматического построения проема вдоль дуговых стен по подложке dxf/dwg для поэтажных планов.
Генератор
Добавлено отображение выбранного слоя (вместо наименования входа List) в нод "Фильтр по слою".
Усовершенствовано распознавание толщины дуговых стен при построении стен по контуру по подложке dxf/dwg.
Добавлено построение проема вдоль дуговых стен при помощи нода "Создать окна на пересечении стен и линий" по подложке dxf/dwg .
Для нода "Усовершенствованное создание этажей по заданным уровням" добавлена возможность включить создание этажей как для предыдущих версий программы (опция "Верхние уровни этажей - Да").
Создание и корректировка модели в САПФИР
Исправлена проблема вычитки файла s2l для отображения мозаик нагрузок штамп . Для корректного отображения мозаик нагрузок необходимо заново импортировать файл s2l.
Добавлены новые виды нагрузок:
- Депланация в узлах учитывает нарушение плоскости поперечного сечения стержня, что важно при расчете тонкостенных конструкций.
- Бимомент в узлах учитывает момент, возникающий из-за действия силы, распределенной вдоль высоты сечения.
- Бимомент по линии применяется для моделирования распределенного бимомента вдоль элемента конструкции.
Добавлены модули динамики (22) Ударное воздействие, (23) Импульсное воздействие и (50) Сейсмическое (AzDTN 2.3-1-2010, с изм. 01.01.2014).
В диалоговое окно "Редактор загружений" для выбранного загружения добавлен параметр "Масштаб представления нагрузок", который позволяет изменять масштаб отображения сосредоточенных, линейных нагрузок и нагрузок-штампов, обеспечивая их более наглядную визуализацию.
Добавлена настройка расположения шкалы результатов для визуализации результатов расчета (в расчетной модели САПФИР), в том числе, и для визуализации результатов расчета Экспертизы ЖБК.
Реализована опция для нагрузок на лестничные марши, которая позволяет управлять тем, включать ли нагрузку в дополнительное загружение при монтаже.
Документирование
В задачах динамики во времени реализована возможность документирования результатов расчета в табличном формате для выбранных шагов интегрирования.

Формирование таблицы результатов для выбранных шагов интегрирования
Добавлена возможность использовать фильтр экстремальных усилий для случая, когда конструктивный элемент состоит из одного конечного элемента.
На закладке Ошибки и предупреждения таблиц результатов расчета стальных конструкций в отдельном столбце добавлен список номеров элементов.
По вопросам приобретения, действующих акций, а также для получения консультаций по продуктам обращайтесь к специалистам РУССКОЙ ПРОМЫШЛЕННОЙ КОМПАНИИ по тел.: +7 (495) 744 0004, e-mail: price@cad.ru, или оформите заказ в нашем интернет-магазине.



